Home
About Us
Concept
Masterplan
Developer
Award & Certification
Location
The Products
Residential
Commercial
Facilities
Info
Latest News
Promotion
Events
Gallery
Career
Contact Us
Ciputra Graha Mitra
Ruko Deliozo 2lt
The Products
Commercial
Deliozo Plaza
Ruko Deliozo 2lt
Ruko Deliozo 3lt
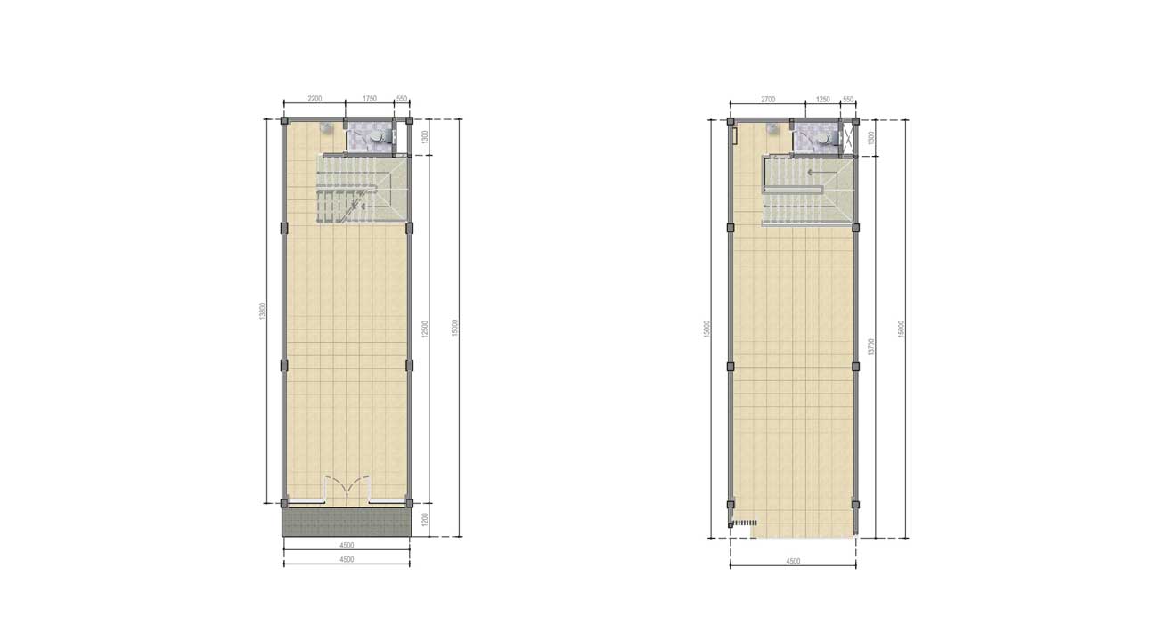
Ruko Deliozo 2lt
67 m
2
134 m
2
15 m
4 m
0
2
0
1
0
Pondasi:
Beton bertulang
Lantai:
Keramik
Dinding:
Bata finish plester + aci dan cat
Cat:
ICI/Setara
Plafond:
Gypsum board
Atap:
Tutup Atap:
Dak Beton
Kusen:
Aluminium
Pintu & Jendela:
Alumunium + clear glass
Sanitair:
Toto/setara
Listrik:
2200 Watt
Air:
Standar PDAM
Lain-lain: